玄关一词,最早出自道德经玄之又玄,众妙之门。在中国堪舆中,玄关讲究藏风纳气,是必要的空间设置。现代生活中,玄关延续了其重要空间功能,作为室内外缓冲地带、入户第一空间,所占面积不大却身负重任。
在以往的一些项目中,常因为整体面积小就舍去玄关,户型的确看起来方正整齐,但实际生活中,不仅存在室内隐私开门即暴露的不安全感,还有无处安放的衣帽鞋包会让入口处凌乱不堪,分分秒秒都会把人推到情绪爆炸边缘。因此,我们认为再小的户型也应设有玄关。下文将梳理当下常见玄关收纳设计及新趋势。
01
走廊式玄关
进门处预留一段走廊过渡区,利用过道空间的单侧或双侧,贴着墙体或嵌入墙内做玄关柜,此类玄关称之为走廊式。该布局相对于户内流线来说相对独立,较少干扰,节约面积,常见于中小户型。
以佛山东原印阅府95㎡和长沙时代建发和著142㎡户型为例,入户单侧可选择通顶柜,除了最基本的收纳功能,还可融入衣帽区、换鞋凳、置物区、全身镜等功能,达到一柜多用的效果。
图:佛山东原印阅府95㎡户型
图:长沙时代建发和著142㎡
02
转弯式玄关
入户时面向一堵墙,视线需转弯才能进入客厅空间,这种类型的玄关归纳为转弯式。成都华发锦江首府148.5㎡户型可利用对墙空间设一面玄关柜;台州龙誉华庭120㎡户型入户拐角处的侧墙空间也可利用,比如打造一个功能饱满的L型玄关柜。
图:成都华发锦江首府148.5㎡户型
图:台州龙誉华庭120㎡
03
步入式玄关
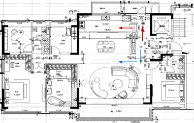
步入式玄关虽然没有统一的尺寸标准,但当下符合中国主流户型的玄关尺寸深度为800mm(八百库),刚好够一人站进,完美解决大件、不规则物品的收纳问题。嘉兴新希望金地锦粼鸣庐149㎡、厦门旭辉铂悦五缘湾上144㎡户型的步入式玄关能承担家政间功能,可收纳扫地机器人、长柄吸尘器、蒸汽拖把等并为其充电,功能性和实用性大大提升。
图:嘉兴新希望金地锦粼鸣庐149㎡户型
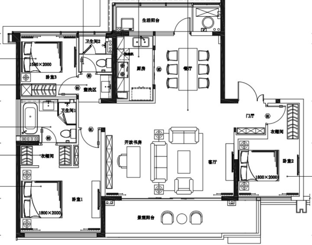
图:厦门旭辉铂悦五缘湾上144㎡
04
内外双玄关
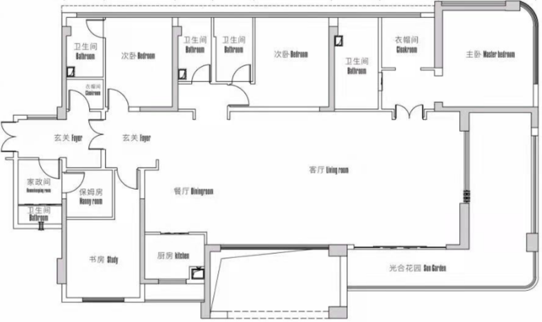
双玄关通常出现在一梯一户的高端住宅产品中,电梯间外预留的空间给业主生活带来更多可能性。后疫情时代,外玄关可作为入户前消杀空间,放置洗手液、消毒液等防疫物资,还可存放快递或者是童车、购物小推车、雨具等常用但不常清洁的物品,做到户内户外洁污分离。
图:成都招商未来公园170㎡户型
图:重庆新希望D10天际252㎡
目前,在一些刚需、改善户型中也逐渐出现了内外双玄关的身影,如武汉保利明玥晨光88㎡、武汉联投城建花山印象116㎡户型。
图:武汉保利明玥晨光88㎡
图:武汉联投城建花山印象116㎡
05
双动线玄关
双动线玄关,大致上可以分为居家动线和家政动线。一条动线由玄关进入客厅,连通户内主要空间;一条由玄关进入储藏室或家政间,连通收纳和清洁区域。该类型玄关在后疫情时代受到普遍关注,通常出现在200㎡以上户型中,两条动线独立无交叉,同时穿梭不拥挤。其优势在于一是生成不同的归家场景,提供人性化入户体验;二是满足家人与访客(业主与保姆)动线独立运行的需求;三是净脏分区,尽可能地抵御室外污染被带进室内。
图:重庆首创天阅嘉陵220㎡户型
图:淮安泓著大观215㎡户型
06
对景式玄关
对景式玄关源自中国传统建筑中照壁的设计理念,进入玄关后面对的是一面景观墙,可从两侧入户,既能起到装饰作用,又能遮蔽视线保护隐私。交投置业融创美的青山印165㎡、长沙万科森林公园248㎡户型均采用对景式玄关,入户流线与生活流线基本分离,兼顾入户仪式感和玄关独立性。
图:交投置业融创美的青山印165㎡户型
图:长沙万科森林公园248㎡户型
综上,玄关是小户型的奢侈空间已不攻自破,无论哪种玄关形态皆可根据业主需求按照实际情况运用到户型设计之中,玄关功能区的实现并不完全依赖于面积。随着产品力升级,打造功能集成、空间高效、动线清晰的玄关空间势必成为发展趋势。
排版|土木
往期回顾
扫码关注我们
微信号:克而瑞产品测评
chanpinli100
